我要参展
管理规定
申报说明
首页
资讯
搜索
注册/登录
EN
EN
中文
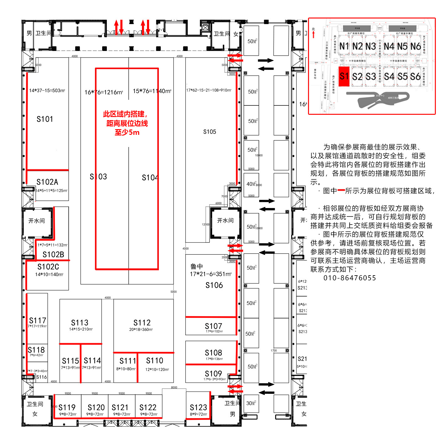
2020中国国际农业机械展览会《展位示意图--特装背板搭建建议》
发布时间:2020-09-10
分享
2020中国国际农业机械展览会《展位示意图》.zip